438 Kinloch CRESCENT

Property Description

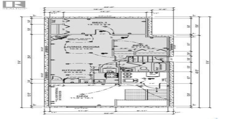
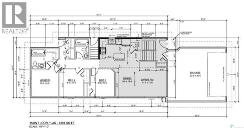
Showhome available for viewing. Extremely well appointed bi-level with legal two-bedroom suite! Designed and priced exclusively for savvy investors, first-time home buyers or those looking to downsize. For only $544,900.00 you get a beautifully built bilevel with the following included: Finished legal suite with separate gas and electrical meters. Finished front landscaping with concrete walkways to main door and suite door. Vaulted ceilings throughout main living area, dining room and kitchen. Luxury vinyl plank flooring throughout for great durability and aesthetic appeal (No Carpet!). Upgraded Hardie Board exterior accents. There is an optional 4th bonus room for extra rental income in the basement (separate from legal suite) roughed in with finishing options available. This is a pre-sale opportunity. GST & PST are included in the purchase price with any applicable rebate to builder. If purchaser(s) do not qualify for the rebates additional fees apply. Renderings were completed to be as close to the finishing as possible but should be regarded as artistic in nature. Images are of a recently built Erikson model – Fit & finish are very close, but some changes do apply. Please NOTE: Appliances are not included in the price. Limited inventory is available.

Basic Details
Property Type:
Homes For Sale
Home Style:
Bi-Level
Bedrooms:
5
Bathrooms:
3
Square Foot:
1,091 Sqft
Garage:
Attached Garage, Parking Space(s) (2)
Basement:
Full (Partially finished)
Listing Type:
-Vinland
Homes For Sale -Vinland
Contact Vinland Homes